Općenito

  • ID nekretnine: 299
  • Tip nekretnine: Stanovi
  • Status: Novo
  • Lokacija: Zadar, Novi Bokanjac
  • Površina: 70.00 m2
  • Cijena: 1 €

Detalji

  • Broj spavaćih soba: 2
  • Broj kupaonica: 1
  • Parking: Da
  • Broj etaža: 1
  • Novogradnja: Da
  • Terasa: Da
  • Protuprovalna vrata: Da
  • Klima uređaj: Da
  • Energetska učinkovitost: A

Opis

NOVI PROJEKT U ZADRU - NOVI BOKANJAC! NOVOGRADNJA!

DVOSOBNI STANOVI S NATKRIVENIM PARKINGOM, OSTAVAMA I VRTOVIMA!

INVESTITOR FIRMA U SUSTAVU PDV-a - KUPAC NE PLAĆA POREZ!

U ponudi su dvosobni stanovi, koji se nalaze na prvom ili drugom katu.

Detalji:

- površine 67-74 m2 (ovisno o pripadcima)

- natkriveni parking - jedan ili dva natkrivena parkirna mjesta

- ostave u podrumu zgrade

- vrtovi u prizemlju zgrade (moguća kupnja dijela vrta za sve stanove)

Stanovi će biti opremljeni:

- kvalitetnom PVC stolarijom,

- na prozorima i balkonskim vratima ugradit će se komarnici

- protuprovalnim i protupožarnim ulaznim vratima,

- podnim grijanjem u kupaonicama,

- podovi će biti obloženi parketima ili pločicama - kupac do određene faze izgrađenosti može birati pločice i parkete,

- grijanje i hlađenje odvijat će se multi-split klima uređajima, u dnevnom dijelu jedna jedinica i u svakoj spavaćoj sobi po jedna jedinica,

- energetski učinkoviti materijali - očekivani energetski razred A

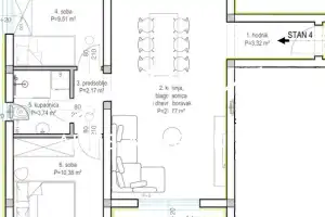
Primjer stana:

🏠 Dvosoban stan na prvom katu, koji se sastoji od:
- hodnika – 5,96 m²
- otvorenog prostora: kuhinja + blagovaonica + dnevni boravak – 21,48 m²
- kupaonice – 4,25 m²
- spavaće sobe 1 – 9,09 m²
- spavaće sobe 2 – 8,43 m²
- terase – 4,08 m²
- spremišta – 3,81 m²
- 2 parkirna mjesta (jedno natkriveno, jedno vanjsko nenatkriveno) te vrta u prizemlju zgrade 30 m2.

Cijena: 207.700 EUR

U gradnji zgrade koristit će se kvalitetni materijali (provjerenih proizvođača) u skladu sa standardima gradnje i projektnom dokumentacijom.

Svaka samostojeća stambena zgrada sadrži sedam stambenih jedinica, katnosti Pr+2. U podrumu se nalazi 7 spremišta. Svaka etaža zgrade sastoji se od 3 stambene jedinice, osim prizemlja u kojem se nalazi jedna stambena jedinica.

Stanovi su idealni za obiteljski život ili kao investicija za turistički najam. Nalaze se u mirnom okruženju, a u blizini su svi potrebni sadržaji – škola, vrtić, trgovina, autobusna stanica te brza povezanost s centrom grada i plažama.

Očekivani završetak zgrade je kraj 2026. godine/početak 2027. godine

Mogućnost financiranja kreditom banke uz plaćanje 20% učešća.

O kvartu Novi Bokanjac:

Novi Bokanjac je mirna i obiteljski orijentirana gradska četvrt smještena na zapadnom dijelu Zadra, udaljena svega 10-ak minuta vožnje od centra grada i plaža. Ovaj kvart idealan je za sve koji traže ugodan spoj urbanog i prirodnog okruženja – okružen zelenilom, maslinicima i obiteljskim kućama, Bokanjac pruža osjećaj privatnosti i opuštenosti, ali bez gubitka dostupnosti sadržajima.

U kvartu se nalaze škola, vrtić, trgovine, ljekarna, crkva i javni prijevoz, a nova infrastruktura i prometna povezanost dodatno doprinose njegovoj atraktivnosti. Popularan je među mladim obiteljima, ali i investitorima koji prepoznaju njegov razvojni potencijal.

Zašto Zadar?
Zadar je savršena destinacija za kupnju stana – grad s dušom, morem i perspektivom. Spoj moderne infrastrukture, sigurnosti, prirodne ljepote i visokog životnog standarda čini ga idealnim mjestom za život i ulaganje. Bilo da tražite dom ili investicijsku nekretninu, Zadar nudi stabilan rast, odličnu prometnu povezanost i sve što vam treba za kvalitetan život uz more.

Za više informacija i razgledavanje, slobodno nas kontaktirajte.

info@artis-nekretnine.hr
+385 99 200 3665
+385 99 443 0450